NEW

横浜市神奈川区西寺尾3丁目の新築一戸建

5,780万円

神奈川県横浜市神奈川区西寺尾3丁目

横浜線「大口」駅徒歩14分

京浜東北線「新子安」駅徒歩21分

京急本線「京急新子安」駅徒歩21分

価格
5,780万円
間取り
4LDK
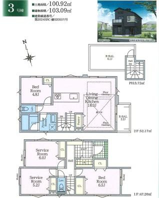
土地面積
100.92㎡
所在地
神奈川県横浜市神奈川区西寺尾3丁目
交通

横浜線大口」駅 徒歩14分

京浜東北線新子安」駅 徒歩21分

京急本線京急新子安」駅 徒歩21分

建物面積
103.09㎡
築年月
2025年6月(新築)

物件の特徴

  • TVモニタ付きインターホン

  • 独立洗面台

  • 浴室乾燥機

セールスポイント

☆当日予約可☆大口駅徒歩14分!
LDKは17帖超/オープンキッチン♪

ポイント

☆当日予約可☆大口駅徒歩14分! LDKは17帖超/オープンキッチン♪ 

担当者のコメント

佐藤 輝明

住環境良好の閑静な住宅街にございます。
緑豊かな神の木公園近くで充実の暮らしを!
設備充実、ハイグレード新築住宅を是非ご覧ください。

基本情報

販売戸数
-
総戸数
-
間取り / 詳細
4LDK
向き
北東
建物面積(坪数)
103.09㎡(31.18坪)
土地面積(坪数)
100.92㎡(30.52坪)
建ぺい率 /
容積率
60%/150%
築年月
2025年6月(新築)
駐車場 /
月額料金
有(1台) -
土地権利
所有権
土地
(敷金 / 保証金)
- / -
建物構造
木造 / 2階建
傾斜地部分面積
-
路地状敷地
-
私道負担面積
-
セットバック
要 1.32㎡
高圧線下面積
-
施工会社
-
用途地域
第二種中高層住居専用
地目 / 地勢
宅地 / -
接道状況
一方(南東 公道 4.1m)
国土法届出要否
不要
都市計画
市街化区域
総区画数 /
販売区画数
-/-
現況
完成済み
その他
法令上の制限
高度地区/準防火地域/日影制限有
取引態様
仲介
引渡し
即時
取引条件の
有効期限
2026年02月01日

設備条件

設備条件
  • 陽当り良好 / 閑静な住宅地 / バルコニー / 都市ガス / 公営水道 / 公共下水 / 24時間換気システム / 電気有 / 食器洗い乾燥機 / システムキッチン / 浴室乾燥機 / 温水洗浄便座 / トイレ2ヶ所 / 独立洗面台 / 床暖房 / ウォークインシューズクロゼット / TVモニタ付インターホン / 複層ガラス
設備(その他)
    -

その他

物件番号
95528748
管理コード
177001-3878
建築確認番号
第2024SBC-確02055Y号
情報更新日
2026年01月18日
次回更新予定日
2026年02月01日
取扱会社
  • 株式会社ブライトホーム
  • 神奈川県横浜市神奈川区大口仲町35-5 
  • TEL:0120-07-3550
  • 神奈川県知事 (2) 第30690号
  • 公益社団法人全日本不動産協会
    神奈川県不動産コンサルティング協議会
備考
フラット35利用

支払いシミュレーション

月々の支払額
9.6
購入希望物件価格
万円
頭金
万円
金利
%
返済額(ボーナス1回分)
万円
返済期間

※ボーナスは自動で年2回分で計算されます。

横浜市神奈川区西寺尾3丁目の新築一戸建

横浜市神奈川区西寺尾3丁目の新築一戸建

5,780万円

-

4LDK(103.09㎡)

お気軽にお問い合わせください

無料お問い合わせ

株式会社ブライトホーム

0120-07-3550

09:00~19:30

(休:火・水曜日 ※事前予約で定休日もご案内可能です。)